Azonosító: 6819

Eladó tégla építésű lakás

Bp., III. kerület, Testvérhegy

339 MFt
860 ezer €
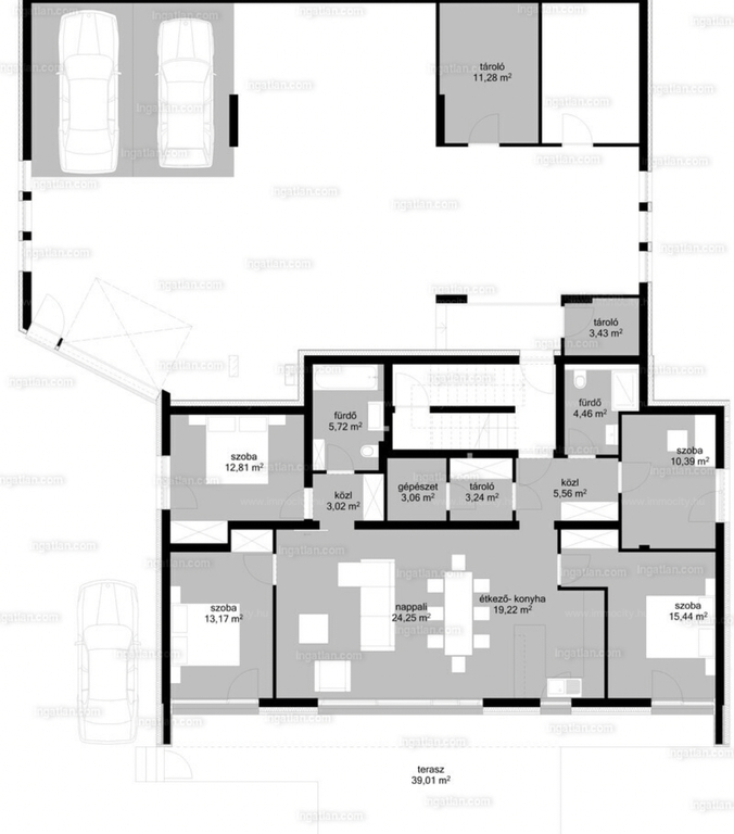
Alapterület
121 m2
Erkély
39 m2
Kert
218 m2
Szobák
5 szoba
Emelet
földszint
Épület szintjeinak száma
3
Belső szintek
1
Fűtés
mennyezeti hűtés-fűtés
Komfort
luxus
Lift
van
Kertkapcsolatos
igen
Légkondícionált
igen
Belmagasság
3 m-nél alacsonyabb
Energiabesorolás
A+
Fürdő és wc
külön és egyben is
Pince
van
Kilátás
kertre néző
Állapot
új építésű
Fekvés
kelet
Parkolóhely típusa
teremgarázs hely
Parkolóhely használatának feltétele
kötelező megvenni
Garázs ára
10 M Ft

Eldugott kis forgalom-mentes mellékutcában felépült a környék legszebb kis társasháza.

Négy kényelmes, igazi családi otthon 2 épületben, mindegyik 4-4 hálószobával. Egyszintes, kertkapcsolatos és egy belső kétszintes, szintén kerttel rendelkező lakrész vásárolható meg.

Elegáns megjelenés, nem szokványos, modern vonalvezetés, praktikus tér-kialakítás és a legkorszerűbb épület-energetika (lakásonként önálló hőszivattyú) jellemzi a házakat.

A vételárban a képeken látható beépített bútorok, konyhagépek, valamint a füvesített, robotfűnyíróval és öntözőrendszerrel telepített kert is benne foglaltatik.

Jelen hirdetés szerződéskötési ajánlatnak nem minősül. Pontos részletekért keresse értékesítési irodánkat!

A B épület földszinti, 5 szobás lakása 121 m2 alapterületű, 39 m2-es terasszal és 218 m2-es kizárólagos használatú kertrésszel rendelkezik.

Kültéren 1 db, a teremgarázsban 2 db beállóhely, valamint 1 db 11 m2-es és 1 db 3 m2-es tároló tartozik a lakáshoz, melyeket együttesen 30.000.000 Ft-ért lehet megvásárolni.

Csorba Dóra
+36 70 329 7700

E-mailben is elküldheti kérdéseit, észrevételeit a következő űrlap kitöltésével