Azonosító: 6817

Eladó tégla építésű lakás

Bp., III. kerület, Testvérhegy

469 MFt
1190 ezer €
Alapterület
158 m2
Erkély
60 m2
Kert
175 m2
Szobák
5 szoba
Emelet
földszint
Épület szintjeinak száma
3
Belső szintek
2
Fűtés
mennyezeti hűtés-fűtés
Komfort
luxus
Lift
nincs
Kertkapcsolatos
igen
Légkondícionált
igen
Belmagasság
3 m-nél alacsonyabb
Energiabesorolás
A+
Fürdő és wc
külön és egyben is
Pince
van
Kilátás
panorámás
Állapot
új építésű
Tetőtér
nincs adat
Fekvés
kelet
Parkolóhely típusa
teremgarázs hely
Parkolóhely használatának feltétele
kötelező megvenni
Garázs ára
10 M Ft

Eldugott kis forgalom-mentes mellékutcában felépült a környék legszebb kis társasháza.

Négy kényelmes, igazi családi otthon 2 épületben, mindegyik 4-4 hálószobával. Egyszintes, kertkapcsolatos és egy belső kétszintes, szintén kerttel rendelkező lakrész vásárolható meg.

Elegáns megjelenés, nem szokványos, modern vonalvezetés, praktikus tér-kialakítás és a legkorszerűbb épület-energetika (lakásonként önálló hőszivattyú) jellemzi a házakat.

A vételárban a képeken látható beépített bútorok, konyhagépek, valamint a füvesített, robotfűnyíróval és öntözőrendszerrel telepített kert is benne foglaltatik.

Jelen hirdetés szerződéskötési ajánlatnak nem minősül. Pontos részletekért keresse értékesítési irodánkat!

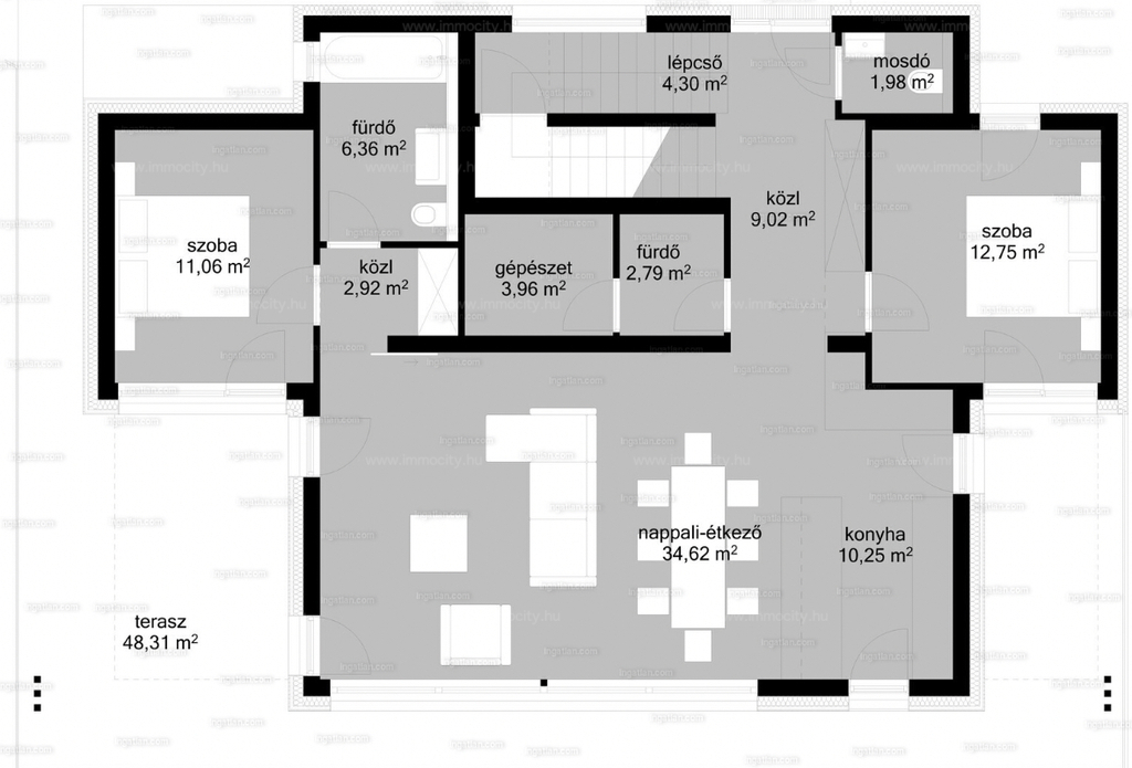
Az A épület földszinti, belső kétszintes, 5 szobás lakása 158 m2 alapterületű, összesen 60 m2 teraszkapcsolattal és 175 m2-es kizárólagos használatú kertrésszel rendelkezik.

A teremgarázsban 3 db beállóhely és 1 db 11 m2-es tároló tartozik a lakáshoz, melyeket 10.000.000 Ft/db áron lehet megvásároln.

Csorba Dóra
+36 70 329 7700

E-mailben is elküldheti kérdéseit, észrevételeit a következő űrlap kitöltésével