Azonosító: 6551

Eladó tégla építésű lakás

Bp., II. kerület, Rézmál

406.5525 MFt
1032 ezer €
Tervezett átadás:
2027. 1. negyedév
Alapterület
116 m2
Erkély
9 m2
Kert
39 m2
Szobák
3 szoba
Emelet
1
Épület szintjeinak száma
4
Belső szintek
1
Fűtés
hőszivattyú
Komfort
összkomfortos
Lift
van
Kertkapcsolatos
nem
Belmagasság
3 m-nél alacsonyabb
Energiabesorolás
A+
Fürdő és wc
külön és egyben is
Pince
van
Kilátás
panorámás
Állapot
új építésű
Tetőtér
nem tetőtéri
Parkolóhely típusa
teremgarázs hely
Parkolóhely használatának feltétele
megvásárolható
Garázs ára
18 M Ft

TAILOR-MADE & UNIQUE

Válassza a legjobb budai elhelyezkedésű társasházat, ahol a hibátlan rózsadombi elhelyezkedés mellett a lakás méretével kapcsolatban sem kell kompromisszumot kötnie.
Nem gond, ha az itt látható tervekben szereplő méretnél kicsivel kisebb vagy sokkal nagyobb méretű otthont képzelt el!
Csak az ÖN által megfogalmazott igény számít, egyedileg kialakított lakás-méretek és belső elrendezés!
Ön megálmodja, mi megépítjük személyre szabott otthonát! Kertkapcsolatot szeretne vagy az emeleti erkélyes lakás az ideális?
A 3 emeletes épületben a 60-340 m2 közötti terület formálásának csak a fantázia szab határt.
Egy teljes szint 176 m2. M2 ár 3,1 M Ft-tól.
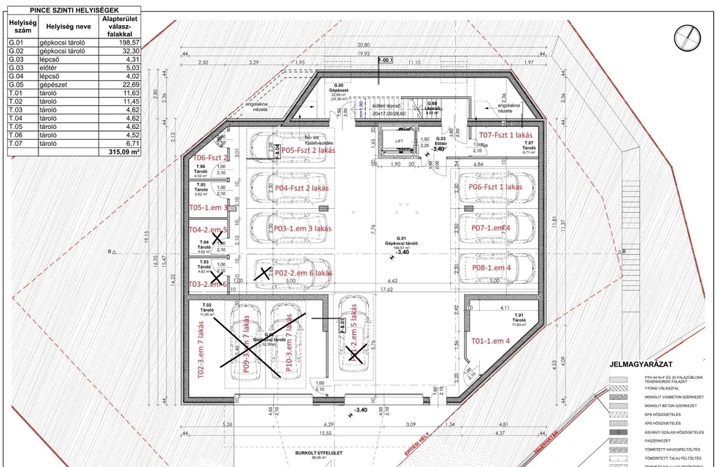
A lakásokhoz parkolóhelyek a teremgarázsban 18 M Ft/hely, tárolóhelyiségek 6-9 M Ft/helyiség vételáron megvásárolhatók.

Ingyenes tanácsadással és tervezéssel állunk rendelkezésére!

A belső fotók látványképek egy megvalósítható kialakításról.
Várható átadás: 2027.I.n.év.

Jelen hirdetés szerződéskötési ajánlatnak nem minősül. Pontos részletekért keresse értékesítési irodánkat!

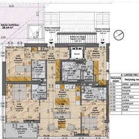
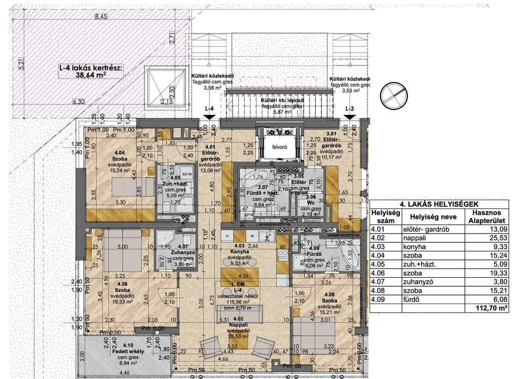
Az I. emeleti lakás 4 szobás, 115,96 m2 alapterületű, 9 m2-es erkéllyel és 38,64 m2-es kizárólagos használatú kertrésszel rendelkezik. A lakáshoz a P7 és P8 számú parkolók megvásárolandók a teremgarázsban 18 M Ft/hely vételáron, valamint a T01 jelű tárolóhelyiség 6 M Ft összegért.

Csorba Dóra
+36 70 329 7700

E-mailben is elküldheti kérdéseit, észrevételeit a következő űrlap kitöltésével